本套装修为东南亚型装修,客厅地面采用地板装修,局部采用地毯进行装饰,墙面采用的墙纸进行装修,吊顶采用石膏板进行平顶吊顶,加以吊灯做装饰,东南亚风格的沙发,舒适柔软,沙发墙面上挂了几幅挂画,起到一个装饰点缀的作用,黑色的电视播放着精彩的节目,客厅与餐厅是连在一起的,藤编的椅子配以木式的餐桌,共同演绎了时尚的魅力,整个空间给人一种古朴的民俗风情。
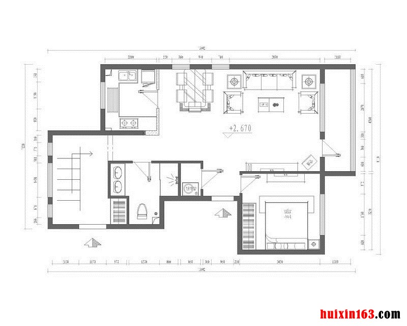
![]() 光泰花园东南亚风格装修效果图-平面布置图
|
小区效果图说明
光泰花园位于安徽省安庆市马家岭路18号,环境优雅,美观大方,生态良好,邻里和睦,祥和文明,康乐和谐。物业管理完善,地理环境优越,周围交通便利,周围配套设施齐全。学校医院等配套设施健全。
本套装修为东南亚型装修,客厅地面采用地板装修,局部采用地毯进行装饰,墙面采用的墙纸进行装修,吊顶采用石膏板进行平顶吊顶,加以吊灯做装饰,东南亚风格的沙发,舒适柔软,沙发墙面上挂了几幅挂画,起到一个装饰点缀的作用,黑色的电视播放着精彩的节目,客厅与餐厅是连在一起的,藤编的椅子配以木式的餐桌,共同演绎了时尚的魅力,整个空间给人一种古朴的民俗风情。 更多»推荐小区效果图
共0条 [查看全部] 相关评论
|