本套装修为混搭型装修,客厅地面采用地板进行装修,局部采用地毯进行装饰,墙面采用的是白色的乳胶漆进行装修,吊灯采用石膏板进行平顶吊灯,加以吊灯做装饰,蓝色加白色的沙发,给人一种海洋的味道,木色的茶几以及木色的电视柜,古朴典雅,绿色的盆栽为这个空间带来了绿意,布置中也有既趋于现代实用,又吸取传统的特征,在装潢与陈设中溶古今中西于一体。
2
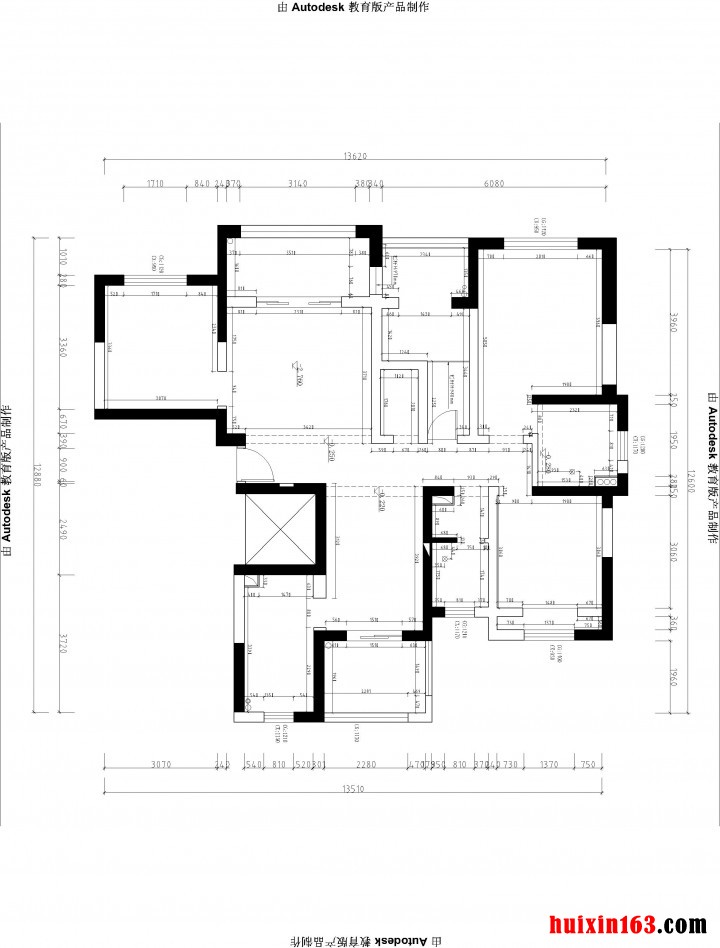
![]() 皖江供电小区混搭风格装修效果图-结构图
|
小区效果图说明
皖江供电小区位于安徽省安庆市人民路338号,环境优雅,美观大方,生态良好,邻里和睦,祥和文明,康乐和谐。物业管理完善,地理环境优越,周围交通便利,周围配套设施齐全。学校医院等配套设施健全。
本套装修为混搭型装修,客厅地面采用地板进行装修,局部采用地毯进行装饰,墙面采用的是白色的乳胶漆进行装修,吊灯采用石膏板进行平顶吊灯,加以吊灯做装饰,蓝色加白色的沙发,给人一种海洋的味道,木色的茶几以及木色的电视柜,古朴典雅,绿色的盆栽为这个空间带来了绿意,布置中也有既趋于现代实用,又吸取传统的特征,在装潢与陈设中溶古今中西于一体。 更多»推荐小区效果图
共0条 [查看全部] 相关评论
|